Rodinný dom na predaj v okrese Komárno
Ildikó Zauko, realitná maklérka realitnej kancelárie HOME CENTER s.r.o. Vám ponúka na predaj jedinečnú historickú nehnuteľnosť nachádzajúcu sa na prestížnej adrese, priamo pri brehu Dunaja.
Budova bola postavená v roku 1900 a pôvodne patrila židovskému lekárovi, čo jej dodáva osobitý historický charakter a hodnotu. Objekt je v pôvodnom stave a vyžaduje kompletnú rekonštrukciu, čo však poskytuje novému majiteľovi výnimočnú príležitosť prispôsobiť ho podľa vlastných predstáv.
Celková zastavaná a využiteľná plocha interiéru dosahuje takmer 1000 m², pričom k nehnuteľnosti patrí aj dvor s možnosťou parkovania.
Budova si zachovala mnohé pôvodné architektonické prvky – symetrickú fasádu, vysoké stropy a historické detaily, ktoré po obnove môžu vytvoriť reprezentatívny priestor.
Možnosti využitia:
Vďaka svojej polohe a veľkorysej rozlohe je objekt ideálny pre rôzne investičné zámery:
* administratívne priestory alebo sídlo firmy
* bytový dom
* apartmánový komplex
* zdravotnícke zariadenie (ambulancie, klinika)
* penzión alebo boutique hotel pri Dunaji
* kombinácia bývania a podnikania
* coworkingové centrum alebo vzdelávacie priestory
* reštaurácia, kaviareň
* kultúrne centrum s historickou atmosférou.
Atraktívna poloha na nábreží, blízkosť centra mesta Komárno a jedinečný charakter budovy robia z tejto ponuky výnimočnú investičnú príležitosť.
Cena: 550 000 €
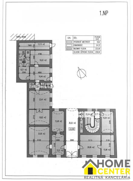
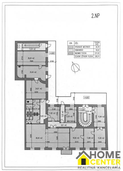
Na základe dostupného pôdorysu je vnútorný priestor budovy prehľadný.
1. PP podzemné podlažie- celková úžitková plocha 160,14 m² z toho nájomná plocha 137 m².
1. NP nadzemné podlažie - celková úžitková plocha 258,94 z toho nájomná plocha 225,99 m².
2. NP nadzemné podlažie - celková úžitková plocha 308,74 z toho nájomná plocha 232 m².
V prípade záujmu o viac informácií alebo obhliadku nás neváhajte kontaktovať a zabezpečím Vám obhliadku tejto krásnej historickej budovy.
Ildikó Zauko
tel:0918388 015
ildiko.zauko@homecenter.sk
www.homecenter.sk
Podrobné informácie
Poloha nehnuteľnosti na mape
Komárno, Slovensko




